Terreni

Località Mattonaia

Terreno edificabile

€ 98.000
Descrizione

TERRENO EDIFICABILE

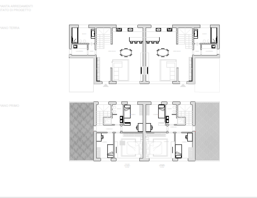
In un contesto tranquillo e defilato dalla strada, proponiamo in vendita un terreno esposto a sud con progetto approvato. Il comodo accesso dalla strada pubblica, consente una facile edificazione e un minor costo di costruzione, optando anche per soluzioni prefabbricate.

Il terreno ricade in zona omogenea B 1 ed è consentita la realizzazione di edifici singoli di non più di due piani abitabili fuori terra, con al massimo due alloggi per edificio.

Per la nuova edificazione valgono le seguenti norme: 

▪ Indice di fabbricabilità fondiaria <= 0,8 mc/mq.; 

▪ Altezza massima dei fabbricati = 7 m lineari; 

▪ Distanza dal ciglio stradale >= 10 m lineari dal ciglio opposto e comunque non inferiore a 4 m lineari dal ciglio confinante; 

▪ Distanza per il calcolo della sagoma limite = 0,7 h, con un minimo di 5 m lineari. 

Laddove indicato con apposito segno in zonizzazione, valgono le seguenti prescrizioni: Obbligo di cessione del 30% del lotto di fabbrica, per la formazione di parcheggi, da regolamentare con apposita convenzione.

Scheda
Tipo di contratto
Vendita
Tipo
Terreni
Piano
stradale
Zona
Zona Est - Eastern Suburbs
Locali
Terreni
Metratura
950 mq
Questo immobile non ti soddisfa?
Posizione
Zona Est - Eastern Suburbs

Ultimi annunci